« Zpět na nabídku bytů

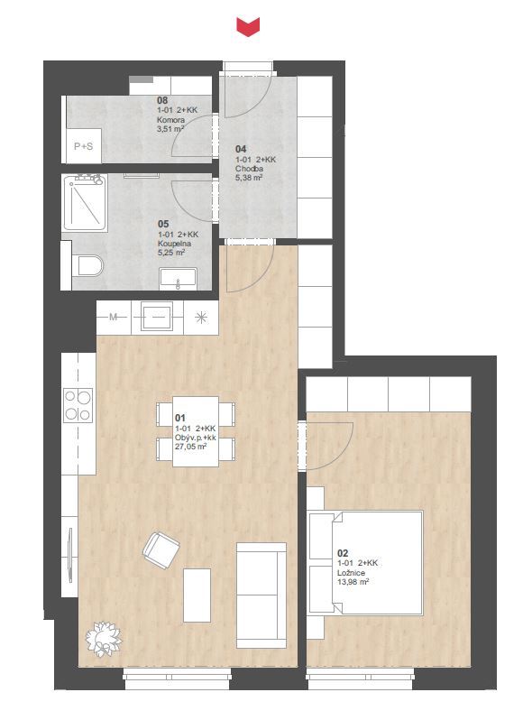
Byt 1-01

Dispozice: 2+kk

Podlahová plocha: 55.37 m2

Plocha celkem: 55.37 m2

Stav: prodáno




V ceně bytu navíc zahrnuta příprava na digestoř s odtahem.
Pro tento byt doporučujeme nadstandardní řešení Elegance.



Zobrazený půdorys bytu, včetně zakresleného vybavení a spotřebičů, je pouze ilustrativní.


Přílohy ke stažení