Lokalita
Vaše terasa
Nabídka bytů
CENÍK
Ceník BD 1A
Ceník BD 2A
Ceník BD 3A
Termíny BD 2A
Termíny BD 3A
Galerie
BD 1A
BD 2A
BD 3A
Vizualizace
Standardy
STANDARD
ELEGANCE
PREMIUM
POROVNÁNÍ VYBAVENÍ
O nás
Kontakt
« Zpět na nabídku bytů
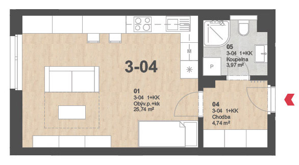
Byt 3-04
Dispozice:
1+kk
Podlahová plocha:
34.45 m
2
Plocha celkem:
34.45 m
2
Stav:
prodáno
Přílohy ke stažení
Karta bytu
‹
›
×